Haus B
Erdgeschoss
| Wohnungen | EG 2.1 | EG 2.2 |
|---|
| Zimmer | 4.5 | 4.5 |
|---|
| Wohnfläche | 118.5 m2 | 118.5 m2 |
|---|
| Balkon/Terrasse | 21.1 m2 | 21.1 m2 |
|---|
| Rasenfläche | 60.8 m2 | 117.6 m2 |
|---|
| Keller | 14.8 m2 | 14.9 m2 |
|---|
1. Obergeschoss
| Wohnungen | OG 2.3 | OG 2.4 |
|---|
| Zimmer | 4.5 | 4.5 |
|---|
| Wohnfläche | 118.5 m2 | 118.5 m2 |
|---|
| Balkon/Terrasse | 21.1 m2 | 21.1 m2 |
|---|
| Rasenfläche | | |
|---|
| Keller | 16.7 m2 | 16.7 m2 |
|---|
Dachgeschoss mit Galerie
| Wohnungen | DG 2.5 | DG 2.6 |
|---|
| Zimmer | 4.5 | 4.5 |
|---|
| Hauptnutzfläche | 187.9 m2 | 187.9 m2 |
|---|
| Balkon | 18.1 m2 | 18.1 m2 |
|---|
| Keller | 17.9 m2 | 17.9 m2 |
|---|
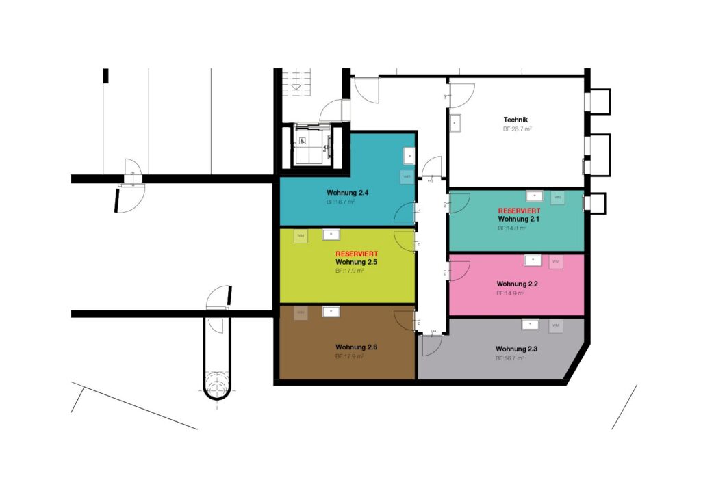
Untergeschoss
| Keller Wohnung EG 2.1 | 14.8 m2 |
| Keller Wohnung EG 2.2 | 14.9 m2 |
| Keller Wohnung OG 2.3 | 16.7 m2 |
| Keller Wohnung OG 2.4 | 16.7 m2 |
| Keller Wohnung DG 2.5 | 17.9 m2 |
| Keller Wohnung DG 2.6 | 17.9 m2 |